掘りごたつと居間が癒しの空間に。

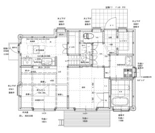
1F間取り

家族が集う居間を中心として、設計した間取りプランです。

親子3人で暮らす3LDKの新築間取りプラン1F

①玄関ポーチを入るとすぐにシューズクロークがあり、散乱してしまいがちな靴たちを整理して収納できます。

②居間は家族が自然と集まれるように、各お部屋へ行く前に必ず通る動線となっています。

③和室が欲しいとのご要望から、掘りごたつをご提案、自由設計の注文住宅だからこそできた、旅館のような雰囲気を味わえる本格和室です。

④キッチンにはパントリー(食器や食品の収納スペース)があります。

2F間取り

寝室からつながる大容量のWIC(ウォークインクローゼット)が嬉しい間取りです。

掘りごたつと居間が癒しの空間に。

⑤2階間取りの一番の特徴は、ウォークインクローゼット。
お洋服に限らず、鞄や帽子など、整理してしまっておくことができます。

⑥廊下をなくしているため、限られた土地を余すことなくお部屋のために活用しています。

⑦2階にも畳スペースがあり、本棚を設けてちょっとした癒しの場所としました。

立面図

参考DATA

  • 3LDK/2階建て
  • 尺モジュール(910モジュール)/廊下幅78mm
  • 延床面積/120.06㎡(36.25坪)
  • ポーチ/5.79㎡(1.75坪)
  • 1階/67.07㎡(20.25坪)
  • バルコニー/13.24㎡(4.00坪)
  • 2階/52.99㎡(16.00坪)
  • 吹き抜け/なし
  • 小屋裏・ロフト/なし
  • 参考価格/2880万円(税抜)